Az értékesítő:
Gombócz Ildikó
+36 70 418 9438

Eladó családi ház Győrújbarát, 128 000 000 Ft, 139 négyzetméter

128 000 000 Ft
családi ház, 139 négyzetméter
Egész szobák:
4
Ingatlan állapota:
Átlagos
Azonosító:
11582346
Értékesítés típusa:
eladó
Ingatlan típusa:
családi ház
Jelleg:
Családi ház
Település:
Győrújbarát
Alapterület:
139
Telekterület:
922
Ár:
128 000 000 Ft
Fűtés jellege:
Cirkó
Kor:
Új építésű
Terasz:
Van
Erkély:
Nincs
Telekterület típusa:
négyzetméter
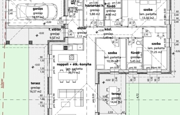
Győrújbarát csendes, zöldövezeti részén, mégis a központhoz közel, 922 m²-es telekre épülő, 118,5 m² hasznos alapterülettel, 3 szoba + tágas nappali kialakítással, két fürdőszobával, valamint 14,44 és 16,57 m²-es terasszal és 16,37 m²-es garázzsal rendelkező, prémium minőségű, ÚJ ÉPÍTÉSŰ családi ház eladó. Emeltszintű szerkezetkész ár: 128 000 000 HUF Igény esetén kulcsrakész kivitelezés. Átadás várható ideje: 2026 július (A látványterv tájékoztató jellegű.) Érd.: +36/70 418-94-38 Főbb jellemzők - ÚJ ÉPÍTÉSŰ, modern kivitelezés - Kiváló alaprajzi elrendezés - Emeltszintű szerkezetkész állapot - Hőszivattyús fűtési mód, hőleadás padlófűtéssel - 3 rétegű nyílászárók - Nagyméretű, napfényes terek - Két külön fürdőszoba - Élhető telek, nyugodt környezet - Prémium anyaghasználat – hosszú távú értékállóság Műszaki tartalom: Falszerkezet: - LEIERTHERM 30 N+F falazóelem, vasbeton pillérekkel Válaszfalak: - LEIERTHERM N+F 10 Nyílászárók: - Szürke színű műanyag ablakok, 3 rétegű üvegezéssel - Hőszigetelt, 5 ponton záródó bejárati ajtó Fűtés: - Hőszivattyú, hőleadás padlófűtéssel Hőszigetelés: - 12 cm AUSTROTHERM AT-N150 lépésálló padlószigetelés - 5 cm STYRODUR vasbeton elemek előtt - 15 cm EXPERT FIX lábazati szigetelés - 15 cm AUSTROTHERM GRAFIT 80 homlokzati szigetelés - 10+15 cm ISOVER DOMO tetőtéri hőszigetelés Ügyfeleink ingatlan vásárlását hozzáértő hitel tanácsadással, illetve teljes körű, ingyenes banki ügyintézéssel segítjük (OTTHON START hitel, támogatott és piaci lakáshitelek, babaváró hitel, személyi kölcsön vagy akár Lakástakarék Pénztár) • Kiemelt banki kedvezményeket nyújtunk partner pénzintézeteink kínálatából (kedvezményes kamat, ingyenes előtörlesztés, egyedi akciók) • Az összes bank ajánlata egy helyen ! • Kényelmi szolgáltatásként lakásbiztosítás, illetve hitelfedezeti biztosítás megkötésében is segítséget nyújtunk.
https://csaladihazak.hu/elado/csaladi-haz/gyorujbarat/128-millio-ft;139-negyzetmeter;4-szoba;cirko-futes/11582346