Az értékesítő:
Horváth Péter
+36 70 606 2990

Eladó családi ház Csörög, 93 000 000 Ft, 128 négyzetméter

93 000 000 Ft
családi ház, 128 négyzetméter
Építőanyag:
Tégla
Egész szobák:
5
Komfort fokozat:
Összkomfort
Fűtés módja:
Hőszivattyú
Ingatlan állapota:
Kitűnő
Azonosító:
11580669
Értékesítés típusa:
eladó
Ingatlan típusa:
családi ház
Jelleg:
Ikerház
Település:
Csörög
Alapterület:
128
Telekterület:
541
Ár:
93 000 000 Ft
Szintek száma:
Földszintes
Fűtés jellege:
Geotermikus
Terasz:
Nincs
Pince:
Nincs
Telekterület típusa:
négyzetméter
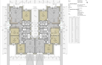
Csendes, jól megközelíthető környezetben Csörögön a Kolozsvári utca 12. szám, 1082 m²-es telken kínáljuk eladásra ezt az új építésű ikerház-projektet. Mindkét házrész nettó 128 m²-es, azonos méretű 541 m²-es kizárólagos használatú telekrészekkel, 4 külön hálószobával, amerikai konyhás nappalival, illetve két fürdőszobával és egy 19,8 m²-es garázzsal. A Porotherm 30 N+F téglából épülő tartószerkezeti falak, a betonkoszorú és a fa födémes tetőszerkezet hosszú távú stabilitást biztosítanak. A kiemelkedő hőszigetelésről 10 cm-es polisztirol lábazati, 15 cm-es EPS homlokzati, valamint 30 cm-es ásványgyapot födémszigetelés gondoskodik. A háromrétegű üvegezésű, hat légkamrás műanyag thermo nyílászárók kiváló hő- és hangszigetelést nyújtanak. A fűtést és melegvíz-ellátást energiatakarékos levegő–víz hőszivattyús rendszer biztosítja, amely a korszerű szigeteléssel együtt rendkívül alacsony energiaigényű működést tesz lehetővé. A hűtésről klímarendszer gondoskodik. A belső burkolatok, ajtók és szaniterek szabadon választhatók az alábbi keretek között: – Hidegburkolat: 6 000 Ft/m²-ig – Melegburkolat: 5 000 Ft/m²-ig – Beltéri ajtók: 70 000 Ft/db – Csaptelepek: 15 000 Ft/db – Fürdőkád: 50 000 Ft – Épített zuhanyzó Ez az ingatlan ideális választás mind családoknak, mind befektetésként – modern kialakítás, igényes műszaki tartalom. INGYENES hitel tanácsadás, CSOK Plusz- Otthon Start ügyintézés! BANKFÜGGETLEN hitelcentrumunk az összes elérhető bank és hitelintézet ajánlatát versenyezteti az Ön kedvéért, ráadásul DÍJMENTESEN. - Egyedi, bankfiókban nem elérhető kamat- és díjkedvezmények - Hitelképesség vizsgálat - Idő, energia és pénz megtakarítás - Teljes hivatali ügyintézés Amennyiben hirdetésem felkeltette az érdeklődését vagy egyéb információra van szüksége hívjon bizalommal!
https://csaladihazak.hu/elado/csaladi-haz/csorog/93-millio-ft;128-negyzetmeter;5-szoba;geotermikus-futes/11580669