Az értékesítő:
Ferge Attila
+36 20 345 4443

Eladó családi ház Szeged, 199 900 000 Ft, 166 négyzetméter

199 900 000 Ft
családi ház, 166 négyzetméter
Építőanyag:
Tégla
Egész szobák:
6
Komfort fokozat:
Dupla komfort
Fűtés módja:
Gáz
Ingatlan állapota:
Azonosító:
11579460
Értékesítés típusa:
eladó
Ingatlan típusa:
családi ház
Jelleg:
Családi ház
Település:
Szeged
Alapterület:
166
Telekterület:
1453
Ár:
199 900 000 Ft
Szintek száma:
Földszintes
Fűtés jellege:
Cirkó
Kor:
21-50 éves
Erkély:
Van
Telekterület típusa:
négyzetméter
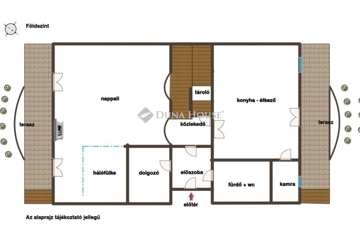
Eladó kétgenerációs családi ház és melléképület Szeged-Baktó csendes, zöldövezeti részén! Szeged-Baktó egyik kedvelt utcájában, igényes családi házak szomszédságában kínálunk megvételre egy teljes körűen felújított, napfényes, kétszintes családi házat, amely két különálló lakrésszel rendelkezik, valamint egy szintén felújított melléképület tartozik hozzá. A tágas, 1453 m²-es telek további lehetőségeket rejt: a hátsó rész leválasztható, így egy kb. 700 m²-es építési telek is kialakítható. Főépület (137,71 / 166,32 m²): Földszint: tágas, világos nappali kandallóval, étkezős konyha, kamra, szoba, hálófülke, fürdőszoba, tároló, valamint két fedett terasz. Emelet: amerikai konyhás nappali, 3 külön nyíló hálószoba, fürdőszoba, loggia. Melléképület (45 m²): 2 szoba, konyha-étkező, kamra, fürdőszoba, valamint egy 20 m²-es terasz. Felújítás és műszaki állapot: Teljes körű korszerűsítés 2020-ban és 2022-ben (főépület és melléképület) Új víz- és elektromos hálózat, modern hőszigetelt nyílászárók redőnnyel és szúnyoghálóval Baxi kazán, Ariston vízmelegítő, Gree inverteres klíma Szigetelt épület, fúrt kút, automata öntözőrendszer Önálló mérőórák minden lakrészhez Kert és parkolás: Rendezett, parkosított kert, mellé garázs és kerékpárút az épület előtt. Ez a kétgenerációs ingatlan ideális választás nagycsaládosok, összeköltözők vagy akár befektetők számára is, hiszen különálló lakrészeinek és melléképületének köszönhetően számos lehetőséget kínál. Ha Ön is egy nyugodt, zöldövezeti környezetben keres tágas, többfunkciós családi házat Szegeden, ne hagyja ki ezt a lehetőséget! Keressen bizalommal a részletekért vagy egy személyes megtekintésért!
https://csaladihazak.hu/elado/csaladi-haz/szeged/200-millio-ft;166-negyzetmeter;6-szoba;cirko-futes/11579460