Az értékesítő:
Szegedi Éva
+36 20 927 8422

Eladó családi ház Gárdony, 82 000 000 Ft, 105 négyzetméter

82 000 000 Ft
családi ház, 105 négyzetméter
Egész szobák:
2
Komfort fokozat:
Komfort
Fűtés módja:
Villany
Ingatlan állapota:
Felújított
Azonosító:
11579339
Értékesítés típusa:
eladó
Ingatlan típusa:
családi ház
Jelleg:
Családi ház
Település:
Gárdony
Alapterület:
105
Telekterület:
873
Ár:
82 000 000 Ft
Szintek száma:
Földszintes
Fűtés jellege:
Villany
Kor:
50 évesnél régebbi
Terasz:
Van
Pince:
Van
Telekterület típusa:
négyzetméter
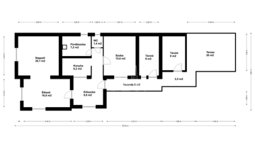
4890. Gárdonyban, 10 perc gyalogos távolságra a központtól és vasútállomástól, 1960-as években épült, 90-es évek elején bővített, 2016-ban és 2020-ban felújított, nettó 81 m2 nettó alapterületű, földszintes, szigetelt családi ház, verandával, terasszal, tárolóval, pincével, összközműves 873 m2-es telken eladó. A kiváló állapotú eredeti vertfalú épület homlokzatára és a födémre kőzetgyapot hőszigetelés, a bővített tégla szerkezetű épületrész homlokzatára 8 cm-es grafitos hőszigetelés került. Az épület fűtését elektromos fűtőpanelek biztosítják alacsony fenntartási költségek mellett. A ház 37 m2-es nappali-étkező, előszoba-étkező, konyha, fürdőszoba, wc, közlekedő helyiségekből áll. További hálószoba leválasztással kialakítható, illetve a verandáról nyíló jelenleg tároló funkciót ellátó helyiség is alkalmas lehet szoba kialakítására. Az épülethez csatlakozik egy tároló és egy 20 m2-es terasz, illetve a ház mellett található egy külön épület, fedett kiülő és pince. A kert gondozott, öntözése ásott kútból lehetséges. Ár: 82 MFt
https://csaladihazak.hu/elado/csaladi-haz/gardony/82-millio-ft;105-negyzetmeter;2-szoba;villany-futes/11579339