Az értékesítő:
Neizer Éva
+36 70 886 6003

Eladó családi ház Győrság, 72 900 000 Ft, 104 négyzetméter

72 900 000 Ft
családi ház, 104 négyzetméter
Építőanyag:
Tégla
Egész szobák:
4
Komfort fokozat:
Összkomfort
Ingatlan állapota:
Kitűnő
Azonosító:
11578990
Értékesítés típusa:
eladó
Ingatlan típusa:
családi ház
Jelleg:
Családi ház
Település:
Győrság
Alapterület:
104
Telekterület:
715
Ár:
72 900 000 Ft
Kor:
Új építésű
Telekterület típusa:
négyzetméter
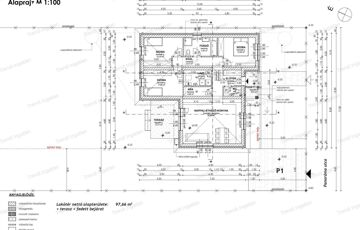
Győrság új építésű részén önálló 97,66 nm-es nappali + 3 szobás családi ház 12,77 nm-es terasszal 715 nm-es telken eladó.  A remek elosztású házban amerikai konyhás nappali, 3 szoba, fürdőszoba WC-vel, háztartási helyiség, kamra, külön WC, előtér, közlekedő található. A nappaliból 12,77 nm-es terasz nyílik. A ház 30-as falazóelemből, 15 cm-es homlokzati szigeteléssel, 3 rétegű műanyag nyílászárókkal kerül kivitelezésre. Az ingatlan fűtését és melegvíz ellátását hőszivattyú biztosítja padlófűtéssel. Felár ellenében kerti csap, klíma- és riasztó előkészítés, térkövezés kérhető. Fűtéskész átadás várható ideje: 2026 ősz Az ingatlan fűtéskész ára: 72.900.000 Ft. Kulcsrakész befejezés kérhető. Az ár tartalmazza a telek árát is. Bővebb információkért forduljon hozzám bizalommal. Hétköznap és hétvégén is várom hívását! Díjmentes, bankfüggetlen hitelügyintézéssel állunk rendelkezésére. A hirdetésben feltüntetett képek illusztrációk.
https://csaladihazak.hu/elado/csaladi-haz/gyorsag/73-millio-ft;104-negyzetmeter;4-szoba;nincs-megadva-futes/11578990