Az értékesítő:
Kiss Luca
+36 20 287 2443

Eladó családi ház Göd, 111 890 000 Ft, 82 négyzetméter

111 890 000 Ft
családi ház, 82 négyzetméter
Építőanyag:
Tégla
Egész szobák:
1
Komfort fokozat:
Összkomfort
Ingatlan állapota:
Kitűnő
Azonosító:
11578337
Értékesítés típusa:
eladó
Ingatlan típusa:
családi ház
Jelleg:
Családi ház
Település:
Göd
Alapterület:
82
Telekterület:
375
Ár:
111 890 000 Ft
Kor:
Új építésű
Telekterület típusa:
négyzetméter
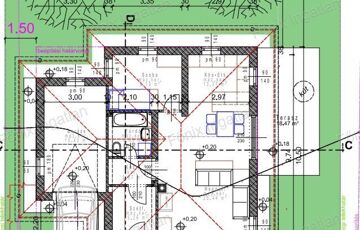
Eladó új építésű ház Göd, Nevelek részén – modern, energiatakarékos otthon! Göd egyik legkedveltebb részén, Neveleken kínálunk eladásra egy 2025-ben épülő, új építésű házat, amely jelenleg 80%-os készültséggel áll, de várhatóan két hónapon belül költözhető lesz. A 736 m²-es telek két ház építésére is alkalmas, megosztás lehetséges.   A 2. épület főbb jellemzői: Telek: 375 m² Nettó alapterület: 76 m² Kialakítás választható: Nappali + 1 hálószoba + 20 nm garázs vagy Nappali + 2-3 hálószoba Terasz: 15 m² Gépsített konyha Vendég WC Gyűrűs kút 7 méter mélységű esővízzel Akadálymentesített, délnyugati fekvésű   Építési és műszaki jellemzők: 50 cm vastag Ytong külső fal, 5 cm dryvit szigeteléssel, beépíthető tetőtér, öntartó födémmel Hőszivattyús padlófűtés, a nappaliban bélelt kémény, kandalló vagy kályha beköthető 7 légkamrás, 3 rétegű Real Therm nyílászárók, távirányítású elektromos redőnyökkel és szúnyoghálóval Biztonsági bejárati ajtó digitális és mechanikus zárral Külső szín, burkolatok és szaniterek még szabadon választhatók Napelem rendszer előkészítéssel, akár 0 Ft-os rezsivel működtethető otthon   Miért érdemes ezt a házat választani?   Modern, energiatakarékos kialakítás Választható belső térkialakítás az igényeknek megfelelően Kényelmes, garázsos parkolás Környezettudatos, alacsony fenntartású otthon napelemmel   Az 1.épület alapja elkészült, várható átadás év vége!   Amennyiben felkeltette az ingatlan érdeklődését, hívjon bizalommal!
https://csaladihazak.hu/elado/csaladi-haz/god/112-millio-ft;82-negyzetmeter;2-szoba;nincs-megadva-futes/11578337