Az értékesítő:
Csobai Lászlóné
+36 70 743 3389

Eladó családi ház Nyáregyháza, 71 000 000 Ft, 90 négyzetméter

71 000 000 Ft
családi ház, 90 négyzetméter
Építőanyag:
Tégla
Egész szobák:
4
Fűtés módja:
Hőszivattyú
Ingatlan állapota:
Épülő
Azonosító:
11576991
Értékesítés típusa:
eladó
Ingatlan típusa:
családi ház
Jelleg:
Ikerház
Település:
Nyáregyháza
Alapterület:
90
Telekterület:
435
Ár:
71 000 000 Ft
Szintek száma:
Földszintes
Fűtés jellege:
Villany
Kor:
Új építésű
Telekterület típusa:
négyzetméter
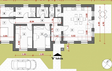
Felső Nyáregyházán Újépítésű ikerház fél!Nyáregyháza központi részén kínálom megvételre ezt a 99 nm alapterületű ikerházfelet. Műszaki leírás : -Beton alap-30-as Leier tégla-15 cm hungarocell szigetelés-Drapp színű nemes vakolat homlokzati záró réteg -Bramac tetőcserép ( barna szinben )-3 rétegű egy színű ablakok-Hőszivattyús fűtésrendszer ( padlón keresztül történő hőleadással )-1 db hűtő-fűtő klíma ( nappaliban )- Napelemes rendszer előkészítése ( napelemek nélkül )Hideg- Meleg burkolatok 6000 Ft / nm árban választhatóak-Szaniterek , beltéri ajtók és lámpatestek az árban . Várható átadás : 2026. 08. hóMegtekintéskor a teljes műszaki tartalmat prezentálom !Amennyiben hirdetésem felkeltette érdeklődését várom megtisztelő hívását a hét bármely napján . 71000000 Ft
https://csaladihazak.hu/elado/csaladi-haz/nyaregyhaza/71-millio-ft;90-negyzetmeter;4-szoba;villany-futes/11576991