Az értékesítő:
Bazsó Zoltán
+36 70 391 1013

Eladó családi ház Dunaharaszti, 157 990 000 Ft, 151 négyzetméter

157 990 000 Ft
családi ház, 151 négyzetméter
Építőanyag:
Tégla
Egész szobák:
5
Komfort fokozat:
Összkomfort
Ingatlan állapota:
Kitűnő
Azonosító:
11576821
Értékesítés típusa:
eladó
Ingatlan típusa:
családi ház
Jelleg:
Ikerház
Település:
Dunaharaszti
Alapterület:
151
Telekterület:
415
Ár:
157 990 000 Ft
Fűtés jellege:
Egyéb
Kor:
Új építésű
Telekterület típusa:
négyzetméter
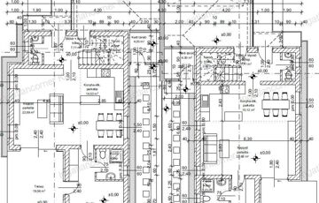
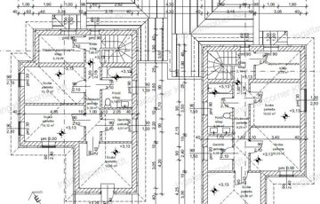
Eladó Dunaharaszti Bezerédi lakóparkjában épülő tároló részen kapcsolódó, emeletes, 151 nm ikerház. A lakás nettó hasznos alapterülete 121 nm és tartozik hozzá egy 30 nm dupla garázs is, illetve egy 4 nm kültéri tároló. Az amerikai konyhás nappali-étkező mellett találunk még 4 hálószobát, 2 fürdőszobát, 1 mosókonyhát, 2 gardróbot, 1 tárolót, és egy dupla garázst is. A Földszinten lévő szülői hálószoba apartmanos jellegű, saját fürdővel és gardróbbal rendelkezik. Az emeleti hálószobák jó méretűek, az egyikhez erkély is tartozik. Szintén az emeleten található egy gardrób és a mosókonyha is. A belső elrendezésen igény szerint tudunk változtatni, bizonyos keretek között - ez további egyeztetést igényel. A lakásokhoz tartozó telek mérete több, mint 415 nm. Nagy előnye a projektnek, hogy lakások egymás mellett helyezkednek el, így mindkét lakás utcafronti bejárattal rendelkezik. A lakásokat csak egy kültéri tároló választja el egymástól, így gyakorlatilag különálló családi házas jelleggel épül a projekt. Műszaki tartalom: -30 cm porotherm tégla -10 cm dryvit szigetelés -betoncserép -hidegburkolatok 7000 Ft /nm, melegburkolat 5000 Ft/nm -hősszívattyús fűtésrendszer padlófűtéses hőleadással -melegvíz: hősszívattyús rendszer, 200L puffer tartállyal -csaptelepek 20 000 Ft/db -viacolorozott garázs, szekcionált távírányítású motoros kapuval -1 kád, 1 zuhanyzó 70 000 Ft/db További, részletesebb műszaki tartalom előzetes egyeztetés illetve megtekintés után elérhető. A beruházó számos referenciával és elégedett ügyféllel rendelkezik Dunaharasztin és környékén; 15 éve működő építőipari cég. Várható átadás: 2026 második félév.
https://csaladihazak.hu/elado/csaladi-haz/dunaharaszti/158-millio-ft;151-negyzetmeter;5-szoba;egyeb-futes/11576821