Az értékesítő:
Csomor István Mihály
+36 20 941 7376

Eladó családi ház Szeged, 233 879 500 Ft, 184 négyzetméter

233 879 500 Ft
családi ház, 184 négyzetméter
Építőanyag:
Tégla
Egész szobák:
5
Komfort fokozat:
Dupla komfort
Fűtés módja:
Hőszivattyú
Ingatlan állapota:
Épülő
Azonosító:
11571327
Értékesítés típusa:
eladó
Ingatlan típusa:
családi ház
Jelleg:
Családi ház
Település:
Szeged
Alapterület:
184
Telekterület:
753
Ár:
233 879 500 Ft
Szintek száma:
Földszintes
Fűtés jellege:
Villany
Kor:
Új építésű
Telekterület típusa:
négyzetméter
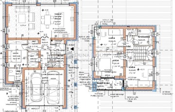
Szeged-Marostő részén, új építésű, egyedi tervezésű, két szintes, nappali+amerikai konyha + 4 szobás, minőségi családi ház eladó, akár kulcsrakész állapotban! A 203 hasznos négyzetméterrel rendelkező lakóingatlan Szeged városának Marostő részén - Szeged úgynevezett Rózsadombján - került megépítésre egy 753 négyzetméteres telken. A városrész jellegzetessége, hogy a környék nagyon szép, igényes, új építésű házakkal van tarkítva.A duplakomfortos ház két szintet kapott, a helyiségek az alábbiak szerint lettek kialakítva:Földszint: Nappali+amerikai konyha (48,50 négyzetméter)Szoba (12,18 négyzetméter)Fürdőszoba+WC - Tusolóval (4,40 négyzetméter)WC (1,56 négyzetméter)Háztartási helyiség (3,84 négyzetméter)Közlekedő (5,99 négyzetméter)Közlekedő (2,72 négyzetméter)Lépcsőtér (2,91 négyzetméter)Szélfogó (4,40 négyzetméter)Kétállásos garázs (33 négyzetméter)Fedett bejáró (14,78 négyzetméter)Terasz (37,06 négyzetméter)Emelet:Szoba (12,60 négyzetméter)Szoba (11,66 négyzetméter)Szoba (11,29 négyzetméter)Fürdőszoba - Fürdőkáddal (5 négyzetméter)WC (1,35 négyzetméter)Közlekedő (6,30 négyzetméter)Fedett terasz (5,31 négyzetméter)Lévén, hogy új építésű házról van szó, említést érdemel a 30 centiméter vastag vázkerámia főfalazat, a földrengésbiztos vasbeton födém (az első szint esetében). Az EPS homlokzati, az XPS vasbeton koszorú és kőzetgyapot födém szigetelés felel a kiváló energetikáért. A téli fűtésről és nyári hűtésről hőszivattyú gondoskodik, padlófűtéses hőleadással. A nyári forróság elkerüléséért a mennyezeti hűtési rendszer felel. Kiemelendő még, hogy a hűtést-fűtést szabályzó GNBS elektronika is betelepítésre kerül, így akár laptopról, telefonról is gondoskodni lehet a ház éppen megfelelő hőmérsékletéről. A garázsba elektromos autók számára töltőállomás létesítése is megtörténik.Több készültségi fokozatban is megvásárolható az ingatlan, ezek különböző tartalmi, felszereltségi és anyagi vonzattal bírnak:Emelt szintű szerkezetkész állapot tartalma, felszereltsége: Elektromos hálózat kiépítése riasztórendszerrel együtt (gyenge áram), szerelvények nélkül, falak két sorral történő glettelése, egy sorral történő fehérre festése, hőszivattyú betelepítése, padlófűtési és mennyezet hűtési rendszer kiépítése + NGBS elektronika, továbbá elektromos, okos motorral felszerelt árnyékolás (redőnyök, zsalúziák).Ára: 215.391.500 HUF.Kulcsrakész állapot tartalma, felszereltsége: Beltéri ajtók 150.000 HUF értékben, hideg-és melegburkolatok, azok szakszerű lehelyezése 8000 HUF/négyzetméteres értékhatárig, villanyszerelvények egyeztetett árig + alap riasztó rendszer, szaniterek egyeztetett árig. Udvar tereprendezése, azon belül térburkolás a garázsbejárónál és az ajtóban. (A látványterven szereplő medence kiépítése extra anyagi vonzattal bír).Ára: 233.879.500 HUFA szóban lévő ingatlan 1 kilométeres vonzáskörzetében óvoda, iskola, bevásárló centrum, valamint sportközpont, mind egyaránt megtalálható. Elsősorban a magas minőséget kedvelő, nagyobb családok számára ajánlom! A képek a kivitelezésről folyamatosan frissülnek. Addig is bármilyen kérdés esetén, kérem forduljon hozzám bizalommal!
https://csaladihazak.hu/elado/csaladi-haz/szeged/234-millio-ft;184-negyzetmeter;5-szoba;villany-futes/11571327