Az értékesítő:
Csomor István Mihály
+36 20 941 7376

Eladó családi ház Szeged, 180 000 000 Ft, 139 négyzetméter

180 000 000 Ft
családi ház, 139 négyzetméter
Építőanyag:
Tégla
Egész szobák:
1
Komfort fokozat:
Összkomfort
Fűtés módja:
Hőszivattyú
Ingatlan állapota:
Épülő
Azonosító:
11570663
Értékesítés típusa:
eladó
Ingatlan típusa:
családi ház
Jelleg:
Családi ház
Település:
Szeged
Alapterület:
139
Telekterület:
184
Ár:
180 000 000 Ft
Szintek száma:
Földszintes
Fűtés jellege:
Villany
Kor:
Új építésű
Klíma:
Van
Telekterület típusa:
négyzetméter
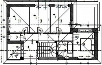
AZONNAL KÖLTÖZHETŐ KULCSRAKÉSZ INGATLANOK A HOLT MAROS BRIDGE KÖZELÉBEN!LEGYEN ÖN AZ ELSŐ LAKÓJA!CSOK, ÁFA VISSZAIGÉNYLÉS, ILLETÉKMENTESSÉG IGÉNYBE VEHETŐ!Újszeged családi házas övezetében már csak 2 db utcai, önálló kertkapcsolatos családi ház (egymástól elkülönülve) várja új Tulajdonosát!Az ingatlanok jellemzői: belső kétszintes, saját kertkapcsolatos, KULCSRAKÉSZ állapotú.Az előkertes ház 184 m2-es telken épül, ahol amerikai konyha + nappali, 5 szoba, 2 fürdő, 2 toalett, kamra, loggia és terasz kerül kialakításra 96 m2-es saját kertkapcsolattal.Térfelosztása az alábbi:Földszint: amerikai konyha + nappali, szoba - mindkét helyiségből a terasz elérhető, kamra, fürdő és a szeparált mellékhelyiség (lakótér: 70,71 m2 + terasz: 11,71 m2).Emelet: 4 külön bejáratú szoba,, fürdő, szeparált mellékhelyiség és loggia (lakótér: 60,86 m2 + loggia: 4,43 m2).Össz. terület: 139,655 m2/ buttó: 147,74 m2 ( 1/2 - 1/2 terasz + loggia) + 95,997 m2-es saját kertAz ingatlanhoz belső udvari dupla garázs tartozik - szekcionált garázskapu - .Kulcsrakész állapot:- minőségi külső-, belső nyílászárók (kilincs) motoros redőnnyel- padlófűtés, mennyezet hűtés- egyedi hőszivattyús fűtési-hűtési rendszer- fürdőszoba szaniterek- prémium minőségű konyhabútor- belső festés, tapétázás- VINYL burkolat- csempe burkolat 60 x 60 cm méretig- burkolás segédanyag- villanyszerelés: kapcsolók, konnektorok, világító testek felszerelése- víz-, csatornahálózat komplettre szerelve- kiépített riasztórendszer, kaputelefon- elektromos kapuval felszerelt duplagarázs, garázsbeálló- elektromos autó töltőoszlopának a kialakítása, felszerelése biztosított- kiépített napelemes rendszer- külső vakolás, színezés- út kialakítása, földfeltöltés- kapubeálló, wpc kerítés- telkek közötti elválasztó kerítés kiépítése munkadíj - anyagköltséget nem tartalmazza- térkőA minőségi anyagokból, igényesen kivitelezett ingatlan kényelmes és biztonságos otthon kialakítására ad lehetőséget.Az ingatlan korszerű technológiával, műszaki tartalommal épült.CSOK, ÁFA VISSZAIGÉNYLÉS, ILLETÉKMENTESSÉG IGÉNYBE VEHETŐ!Az ingatlan kertvárosias környezetben található, a Belváros néhány perc alatt autóval vagy autóbusszal is elérhető. A Holt-Maros ideális hely futóknak, de aki csak sétálni szeretne virágzó bokrokban, fákban gyönyörködhet.Remek kikapcsolódási lehetőségeket nyújt a közeli felújított Erzsébet-liget ahol új szabadidős lehetőség érhetőek el a városlakók számára. Szabadtéri edzőtermek, sportpályák, korszerű futópálya várja a sport kedvelőit.Ha felkeltette érdeklődését bővebb információért HÍVJON vagy keressen személyesen irodánkban!Forduljon Hozzám, keressen a hét bármely napján bizalommal!
https://csaladihazak.hu/elado/csaladi-haz/szeged/180-millio-ft;139-negyzetmeter;6-szoba;villany-futes/11570663