Az értékesítő:
Szlezák Forgó Barbara
+36 70 620 4097

Eladó családi ház Tatabánya, 125 000 000 Ft, 124 négyzetméter

125 000 000 Ft
családi ház, 124 négyzetméter
Építőanyag:
Tégla
Egész szobák:
5
Komfort fokozat:
Összkomfort
Fűtés módja:
Hőszivattyú
Ingatlan állapota:
Épülő
Azonosító:
11561640
Értékesítés típusa:
eladó
Ingatlan típusa:
családi ház
Jelleg:
Sorház
Település:
Tatabánya
Alapterület:
124
Telekterület:
228
Ár:
125 000 000 Ft
Szintek száma:
Földszintes
Fűtés jellege:
Villany
Kor:
Új építésű
Telekterület típusa:
négyzetméter
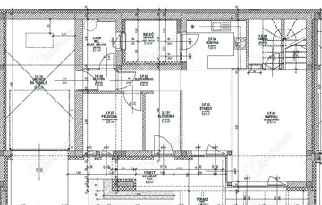
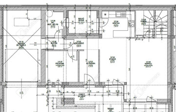
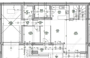
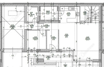
Az Openhouse Tatabánya Ingatlaniroda kínálatában eladó a #176792 hivatkozási számú tatabányai sorház. Tatabánya egyik legkeresettebb városrészében DÓZSAKERTBEN, a Hársfaliget lakóparkban elérhetőek új építésű, modern sorházi lakások. Az 5 lakásos sorház otthonai emeltszintű fűtéskészen vagy igény esetén kulcsrakészen is átvehetők. Lakások főbb adatai Alapterület: 143,06– 151,96 m² Helyiségek: nappali + étkező + konyha, 3 hálószoba, fürdőszoba, külön WC, háztartási helyiség, terasz, saját kertkapcsolat Parkolás: garázs és/vagy kocsibeálló Telekméret: 208,69-472,69 m² (lakásonként változó) Műszaki tartalom Korszerű falszerkezet: 30 cm főfalak + 15 cm grafitos szigetelés Nyílászárók: 3 rétegű hőszigetelt ablakok, redőnytokkal előkészítve Fűtés-hűtés: Midea hőszivattyús multi-split klímarendszer minden fő helyiségben Melegvíz: 200 literes villanybojler Fürdőszoba: elektromos padlófűtés + törölközőszárítós radiátor Tető: nyeregtető, cserépfedéssel Terasz: térkövezett Árak Fűtéskészen: 92.000.000 Ft + telekár (8–12 millió Ft) Kulcsrakészen: 107.000.000 Ft + telekár (8–12 millió Ft) Lokáció – Miért Hársfaliget? Nyugodt, családbarát környezet Zöldövezet, mégis közel a városközponthoz Könnyű közlekedés Budapest és Győr irányába Új építésű, modern lakóövezet, rendezett környezettel Miért érdemes választani? Új építésű, garanciális ingatlan Energiahatékony megoldások, alacsony fenntartási költségek Modern építészeti kialakítás, igény szerint személyre szabható belső terek Befektetésnek és saját otthonnak is tökéletes választás A pontos műszaki leírást és részletes információt személyes találkozó alkalmával kaphat! Érdeklődni és megtekintést egyeztetni: Szlezák-Forgó Barbara – +36 70 620 4097 Ha felkeltette érdeklődését ez az eladó tatabányai sorház, vagy bármely más sorház és bővebb információt szeretne, keressen bizalommal.Hivatkozási szám: #176792 Az Openhouse Tatabánya Ingatlaniroda tagjaként várom Önt az országos hálózatunk teljes kínálatával. A sorház vásárláshoz hitelt igényelne? Ingyenes hitelközvetítéssel segít Önnek bankfüggetlen hitelszakértőnk. További szolgáltatásainkkal (pl. értékbecslés, energetikai tanúsítvány, jogi háttér) is segítjük Önt a vásárlásban. Az otthon érték. Az ingatlan üzlet. 125000000 Ft Szlezák-Forgó Barbara kiemelt értékesítő 0670 620 4097 Referencia szám: 176792
https://csaladihazak.hu/elado/csaladi-haz/tatabanya/125-millio-ft;124-negyzetmeter;5-szoba;villany-futes/11561640