Eladó családi ház Nyíregyháza, Oros, 59 900 000 Ft

Leírás

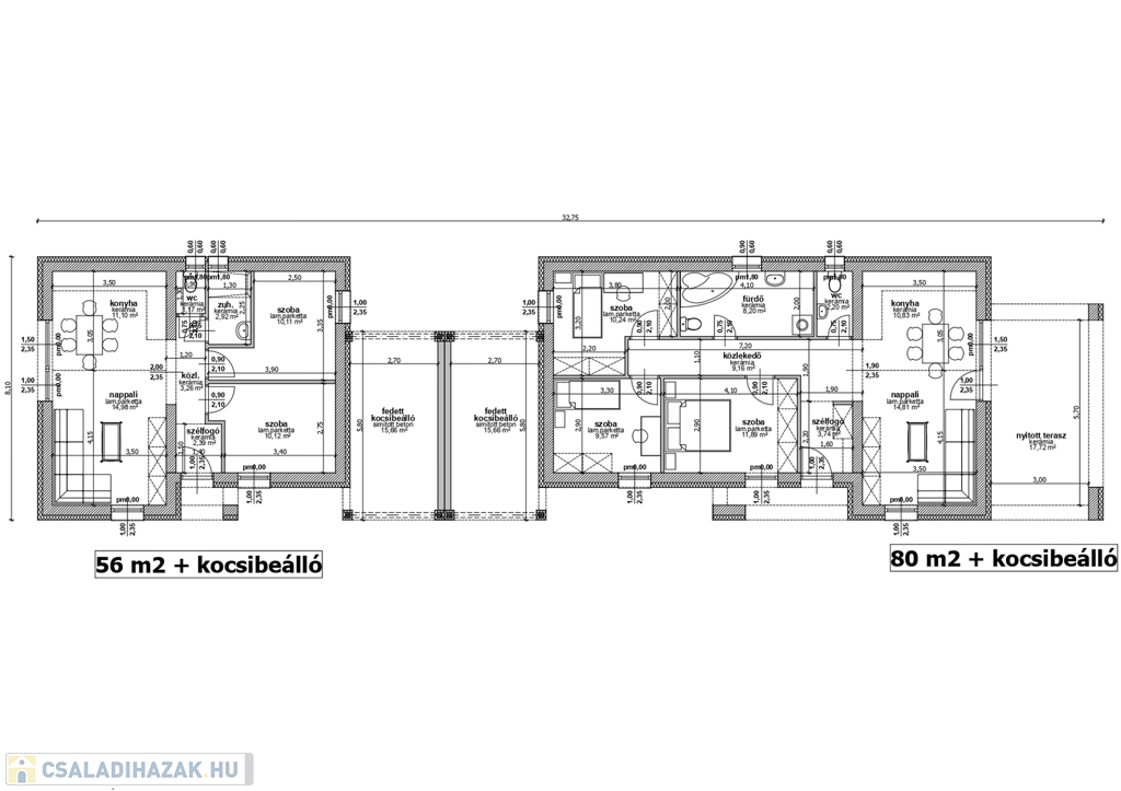
Nyíregyháza Oroson 2026 nyári átadással eladásra kínálunk garázsok mentén összeépített családi ikerházat.
1. ikerház:
300 nm-es telek, 71,5 nm-es ház, N+2 szoba, 15 nm-es terasz, 15 nm-es garázs, 1 fürdő és 2 wc, választható járólap és laminált parketta burkolattal, elektromos padlófűtéssel, 1 db inverteres klímával, 3 réteg üvegezésű műanyag nyílászárókkal redőnyözve, 15 cm homlokzati, 30 cm födém szigeteléssel
Ár: 59,9 M Ft
2. ikerház
420 nm-es telek, 95 nm-es ház, N+3 szoba, 15 nm-es terasz, 15 nm-es garázs, 1 fürdő és 2 wc, választható járólap és laminált parketta burkolattal, elektromos padlófűtéssel, 1 db inverteres klímával, 3 réteg üvegezésű műanyag nyílászárókkal redőnyözve, 15 cm homlokzati, 30 cm födém szigeteléssel
Ár: 69,9 M Ft
További kérdés esetén keressen bizalommal.Az ingatlan azonosítója: 97231Érdeklődni: +36705009226 Az ingatlan azonosítója: 97231 Érdeklődni: +36705009226

Családi ház részletei

Ár: 59 900 000 Ft
Méret: 71 négyzetméter
Azonosító: 11579600
Irodai azonosító: 97231
Városrész: Oros
Telek: 300 négyzetméter
Ingatlan állapota: Épülő
Jelleg: családi ház
Építőanyag: Tégla
Fűtés jellege: Villany
Egész szobák: 2

Így keressen családi házat négy egyszerű lépésben. Csupán 2 perc, kötelezettségek nélkül!

Szűkítse a családi házak
listáját
Válassza ki a megfelelő
családi házat
Írjon a hirdetőnek
Várjon a visszahívásra