Eladó családi ház Diósd 99 999 999 Ft

Leírás

ÁR CSÖKKENÉS!!

DIÓSD-SASHEGYEN ÚJ ÉPÍTÉSŰ CSALÁDI HÁZ ELADÓ,KEDVEZMÉNYES HITELEK IGÉNYBEVEHETŐK!!

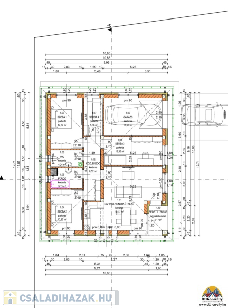
Diósd legszebb részén Sashegyen,eladó egy 140 nm-es 4 szobás új építésű családi ház.Jelenlegi készültségi fok 60%-os, átadás 2025.évvége.

Helyiségek:garázs
fedett terasz,nappali+étkező,3 szoba,
háztartási helyiség,fürdőszoba,külön wc,

-műszaki tartalom:

fűtés:hőszivattyú+padló fűtés, hang és hőszigetelt műanyag nyílászárók,15 cm-es dryvit külső szigetelés,30cm-es Porotherm főfalak,10 cm-es belső válaszfalak.

-infrastruktúra:
a közelben iskola,óvoda, üzletek, orvosi rendelő, gyógyszetár,

-közlekedés:
pár sétára,távolsági busz elérhető

Ingyenes hitel tanácsadással, kedvezményes jogi képviselettel lehetünk segítségére.
Energetikai szakvéleményre van szüksége? Jó helyre fordult.
Megtetszett az ingatlan, de sajátját még nem adta el? Levesszük a gond nagy részét a válláról, segítséget nyújtunk az eladásban is. Bízza ránk az értékesítését!
Kérésre ingyenes értékbecslést is végzünk az ingatlanán,hívjon minket bizalommal.

Családi ház részletei

Ár: 99 999 999 Ft
Méret: 140 négyzetméter
Azonosító: 11575266
Telek: 776 négyzetméter
Ingatlan állapota: Kitűnő
Jelleg: családi ház
Építőanyag: Kérdezzen rá a hirdetőtől »
Szintek száma: 1 szint
Egész szobák: 4

Egyéb jellemzők

  • Garázs
  • Kábel TV
  • Melléképület
  • Parketta
  • Pince
  • Terasz

Így keressen családi házat négy egyszerű lépésben. Csupán 2 perc, kötelezettségek nélkül!

Szűkítse a családi házak
listáját
Válassza ki a megfelelő
családi házat
Írjon a hirdetőnek
Várjon a visszahívásra