Eladó családi ház Dabas 79 000 000 Ft

Leírás

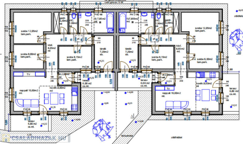
Dabason, rendezett környezetben, aszfaltozott utcában eladásra kínálok egy 2 lakásos ikerházat. Az épületek belső elosztása: amerikai konyhás nappali, 3 szoba, fürdőszoba, toalett, gardrób, közlekedő. A lakásokhoz külön-külön 2-2 terasz kapcsolódik,melyek 6-6 m2 tesznek ki. Az ingatlanok fűtése kondenzációs gázkazánokkal történik, illetve 2 klíma is rendelkezésre áll lakásonként. A hátsó lakáshoz nettó 300 m2-es kert tartozik, az első lakáshoz pedig nettó 200 m2-es, mely 67.5 millióért vásárolható meg. A várható átadás: 2024 december. Jelenleg az alapozás készült el. Megtekinthető: Böszörményi Krisztina 06204004014

Családi ház részletei

Ár: 79 000 000 Ft
Méret: 84 négyzetméter
Azonosító: 11385049
Telek: 300 négyzetméter
Ingatlan állapota: Átlagos
Jelleg: ikerház
Építőanyag: Kérdezzen rá a hirdetőtől »
Fűtés jellege: Cirkó
Komfort fokozat: Összkomfort
Egész szobák: 3
Fél szobák: 1

Egyéb jellemzők

  • Csatorna
  • Garázs
  • Kábel TV
  • Melléképület
  • Parketta
  • Pince
  • Terasz

Így keressen családi házat négy egyszerű lépésben. Csupán 2 perc, kötelezettségek nélkül!

Szűkítse a családi házak
listáját
Válassza ki a megfelelő
családi házat
Írjon a hirdetőnek
Várjon a visszahívásra